
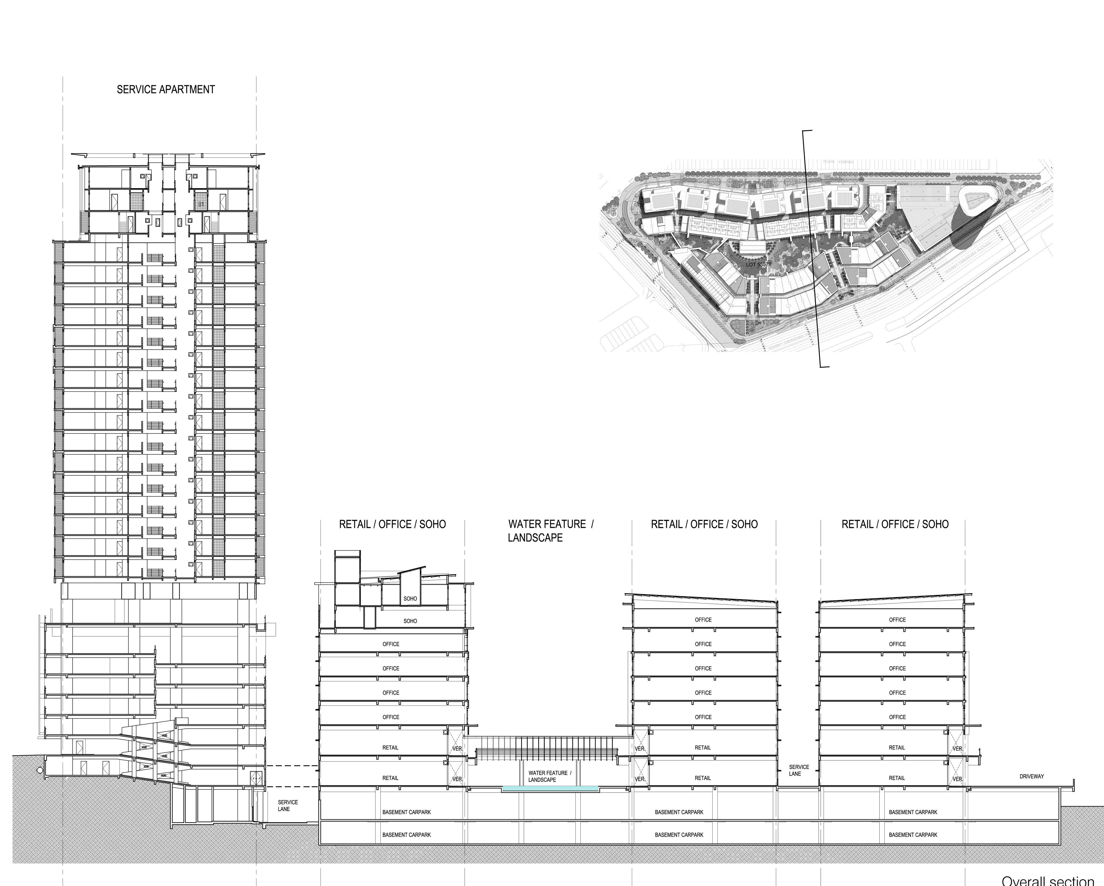
SetiaWalk in Puchong is a 20-acre mixed development that fronts a busy highway, making it highly visible and accessible. The project introduces the modern concept of “live, learn, work, and play,” where residential, retail, and commercial elements are thoughtfully integrated within one development. These components are organized around a landscaped central plaza, which acts as the heart of the community, encouraging interaction and activity throughout the day.
The retail and commercial zones are designed to create a lively street atmosphere with shops, restaurants, and entertainment outlets, while the residential blocks offer a more private and comfortable environment. The landscaped spaces and pedestrian-friendly walkways tie everything together, providing green breathing spaces and seamless connections between different zones.
DETAILS
CLIENT
SP Setia Bhd.
LOCATION
Puchong
SITE AREA
20 acre
PLOT RATIO
1:3.4
STATUS












