
Encore Melaka Theatre is the 10th installation of the Impression Series, a series of spectacular world-class performances blending light, shadow, music, dance, folklore and history.
A world-class performance needs a world-class venue to ensure that audiences’ experience is a memorable one – and thus birthed the idea of Encore Melaka Theatre.
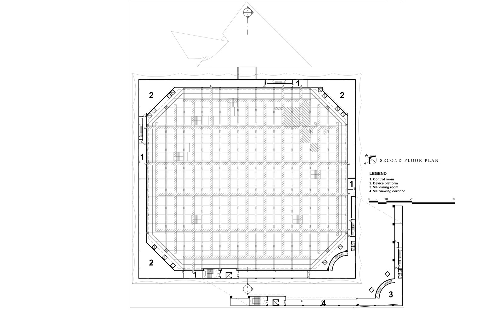
The 2007-seat theatre is touted to be the largest in South East Asia. It features innovative and stunning video projection mapping, including multi-stage hydraulic sets, advance lighting and a 360-degree rotating audience platform that faces 4 different performance stages.
Combining these elements with about 200 local performers created an enthralling 75-min live production, showcasing the history of Melaka’s heritage and culture.
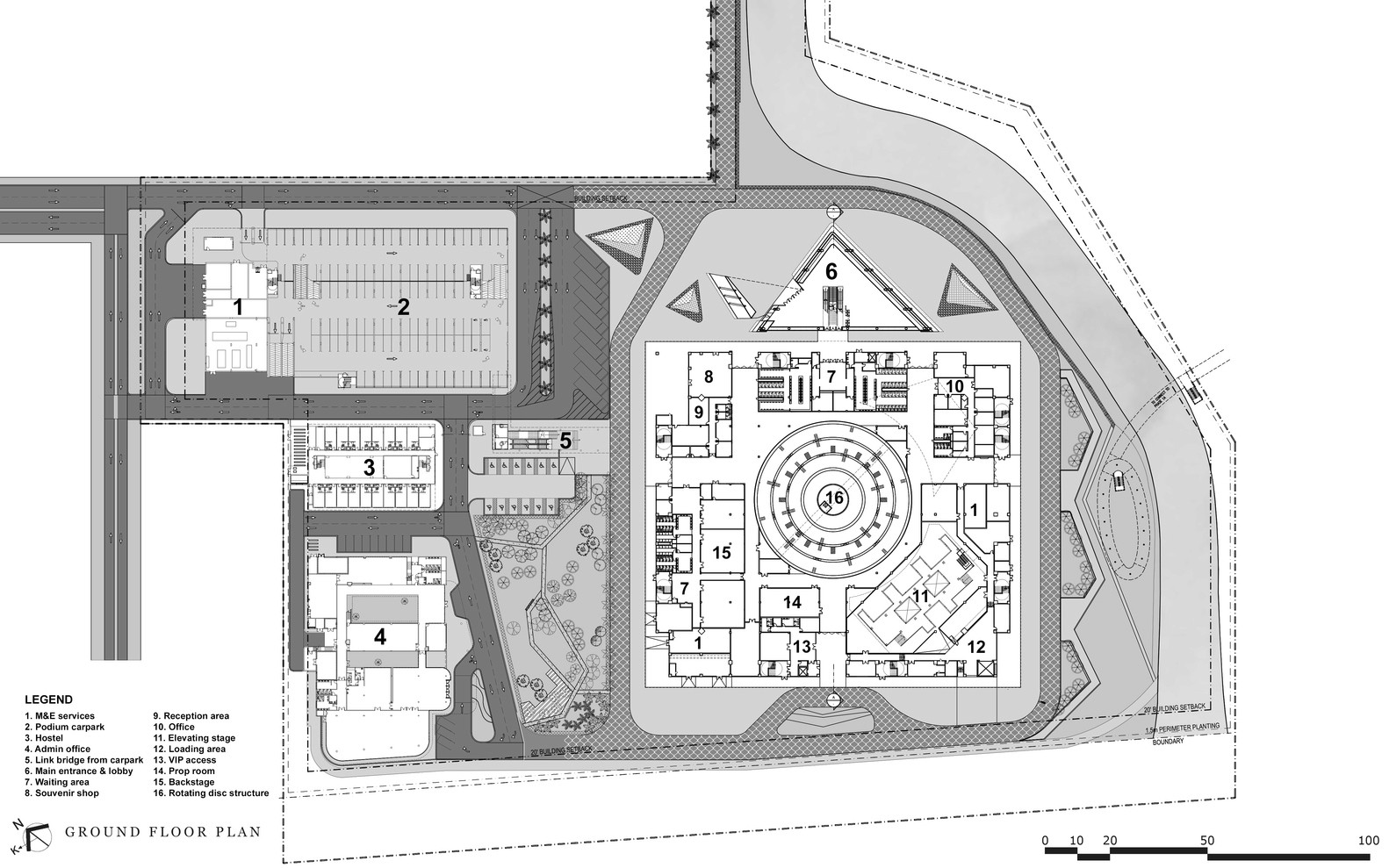
The Theatre is designed as a simple yet sophisticated modern structure in white and blue, which reflects the multi-ethnicity and cultural diversity of Melaka.
Guest are welcomed by an organic canopy entrance leading to a blue foyer – the main façade – which is built with aluminium composite panels to resemble white porcelain tiles. Different shades of blue are used as a metaphor for Melaka’s multiculturism.
DETAILS
CLIENT
PTS Impression Sdn. Bhd.
LOCATION
Malacca
SITE AREA
15.56 acre
PLOT RATIO
1:2
STATUS




















